
Ja zum Wohnungsbau! Nein beim Bürgerentscheid!
Warum weitere Wohnungen in Überlingen? Vor allem für Menschen mit unteren und mittleren Einkommen fehlen in Überlingen Wohnungen. Jeder kennt Menschen in seinem eigenen Umfeld, die bei der Wohnungssuche auf […]

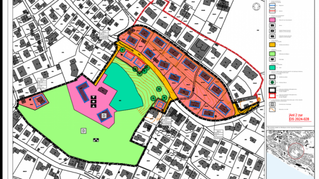
Ochsengschwätz – Rauenstein Ost
Die CDU Überlingen lädt ganz herzlich ein zum Ochsengschwätz Thema: Rauenstein Ost – Ja zum Wohnungsbau! Nein beim Bürgerentscheid! am Montag, 24.11.2025, um 19.00 Uhr im Braustüble des Hotels Ochsen, […]
Manuel Hagel Spitzenkandidat für die Landtagswahl 2026!
Herzlichen Glückwunsch an unseren Landesvorsitzendern Manuel Hagel zur Nominierung als Spitzenkandidat für die Landtagswahl 2026! Herzlichen Glückwunsch auch an Antje Rommelspacher und Prof. Dr. Alexander Bruns zur Nominierung auf der […]
Benefiz- Lauf im Uferpark
CDU Landtagskandidat Alexander Bruns mit OB Jan Zeitler vor dem Startschuss zum Benefiz- Lauf am Sonntag im Überlinger Uferpark. Dank an alle Mitwirkenden und Organisationen für die tolle Veranstaltung!
08.05.2025 – Bürgerstammtisch
ab 19:00 Uhr im Weinstein Jede/r Interessierte ist herzlich eingeladen – es ist keine Anmeldung erforderlich.

Alexander Bruns ist Landtagskandidat
Die CDU Bodenseekreis hat den Vorsitzenden der CDU Überlingen Prof. Dr. Alexander Bruns als Kandidaten für die Landtagswahl 2026 nominiert. Bruns setzte sich im zweiten Wahlgang mit 52,39 % gegen […]

Öffentliche Mitgliederversammlung am 13.03.2025 ab 19 Uhr im Weinstein
Einladung zur öffentlichen Mitgliederversammlung am 13.03.2025Vorstellung der Bewerber um die Nominierung für die Landtagswahl 2026 Die CDU Überlingen lädt ein zur öffentlichen Mitgliederversammlung mit Vorstellung der Bewerberinnen und Bewerber für […]

Stellungnahme zum Bebauungsplan „Rauenstein-Ost“ in Überlingen
Das Planungsgebiet „Rauenstein-Ost“ liegt der Gesamtfläche innerhalb der Umfahrung B31 alt und grundsätzlich in einer vorgesehenen Siedlungsfläche im Flächen-Nutzungs-Plan (FNP) und ist derzeit die einzige und letzte mögliche Geschoßwohnbaufläche im […]
Neujahrs-Ochsengschwätz mit Volker Mayer-Lay
Mehr dazu auch unter: https://mayer-lay-bundestag.de/2025/01/25/neujahrsochsengeschwaetz-der-cdu-ueberlingen/

Bürgerstammtisch am 14.11.2024 ab 19:00 Uhr im Weinstein
Bürgerstammtisch am 14.11.2024 ab 19:00 Uhr im Weinstein – keine Anmeldung erforderlich

Ergebnis der CDU-Vorstandswahlen 2024
Die Mitgliederversammlung der CDU Überlingen hat am 26. September 2024 Vorstandswahlen durchgeführt. Als Vorsitzender wurde Prof. Dr. Alexander Bruns im Amt einstimmig wiedergewählt. Stellvertretende Vorsitzende ist wie bisher Aniko Haufe, […]

Bürgerstammtisch am 10.10.2024 ab 19 Uhr im Weinstein
Alle Interessierten sind herzlich willkommen – keine Anmeldung erforderlich

Volker Mayer-Lay – Nominierung als Bundestagskandidat der CDU im Wahlkreis Bodensee
Hierzu schreibt unser Kandidat Volker Mayer-Lay: Auf ein Neues! Ich bedanke mich für 97,5 % der Stimmen bei meiner erneuten Nominierung als Bundestagskandidat der CDU im Wahlkreis Bodensee! Das gibt […]

Stammtische im Sommer – bei schönem Wetter draußen!
Kommen Sie jeweils ab 19:00 Uhr mit uns ins Gespräch: Donnerstag, 08.08.2024, Gasthaus „Zur Krone“ Donnerstag, 12.09.2024, Restaurant „Weinstein“ Donnerstag,10.10.2024, Restaurant „Weinstein“
Stammtisch am 04.06.2024 ab 19:00 Uhr
mit unserem Europakandidaten Nobert Lins im Weinstein in Überlingen

Bürgerstammtisch am 11.04.2024 ab 19:00 Uhr im Weinstein
Herzliche Einladung zum Bürgerstammtisch am 11.04.2024 ab 19:00 Uhr im Weinstein!

Entwicklung von Sozialem Wohnraum in Überlingen
Aus den aktuellen Bedarfszahlen der Bundesregierung wird bis 2027 ein Defizit von ca. 900.000 (Sozial-) Wohnungen erwartet. Das bedeutet für den westlichen Bodenseekreis und den Einzugsbereich Mittelzentrum Überlingen eine Defizit […]

Kreistagsnominierung für den Wahlkreis VII des Bodenseekreis (Überlingen)
In einer gemeinsamen Versammlung der Ortsverbände Überlingen, Owingen und Sipplingen wurden unter Leitung vom früheren Landrat Lothar Wölfle die Kandidatinnen und Kandidaten des Wahlkreis (Überlingen) für die Kreistagswahl am 9. […]

Unsere Kandidaten für den Gemeinderat
Unsere Kandidaten für den Gemeinderat (von links): Sonja Straub, Dirk Purgold, Nicolas Bruns, Sabine Welte, Sebastian Käppeler, Marcus Maier, Jana Sadik, Carsten Prinz, Aniko Haufe, Monika Mayer-Bruns, Heinrich Mager, Caroline […]
Bürgerstammtisch am 07.12.2023
Die CDU lädt Bürgerinnen und Bürger wieder ganz herzlich ein zum öffentlichen Bürgerstammtisch am Donnerstag, den 7.12.2023, um 19.00 Uhr im Weinstein, Münsterstraße 10 (Kronengässele), Überlingen. Der CDU-Bürgerstammtisch bietet wieder […]
Stammtische im November
09.11.2023 ab 19:00 Uhr Bürgerstammtisch im Weinstein 21.11.2023 ab 18:30 Uhr Forum für Frauen – Frauenstammtisch im Walker näheres unter der Rubrik Veranstaltungen

Bürgerstammtisch am 06.09.2023 ab 19:00 Uhr im Weinstein (bei schönem Wetter draußen)
Die CDU lädt Bürgerinnen und Bürger wieder ganz herzlich ein zum öffentlichenBürgerstammtisch am Mittwoch, den 06.09.2023, um 19.00 Uhrim Weinstein, Münsterstraße 10 (Kronengässele), Überlingen,bei gutem Wetter draußen. Der CDU-Bürgerstammtisch bietet […]

CDU besucht Solarthermie-Anlage
Mitglieder von Vorstand und Fraktion der CDU Überlingen haben auf Einladung des Geschäftsführers des Stadtwerks am See Alexander-Florian Bürkle gemeinsam mit dem CDU-Bundestagsabgeordneten Volker Mayer-Lay vom Wahlkreis Bodensee die neue […]

Unterstützung des Tierheims tut Not
Vorstand und Fraktion der Christlich Demokratischen Union haben sich einen persönlichen Eindruck von der Situation beim Tierheim verschafft, das durch einen großen Wasserschaden gegenwärtig massiv in seiner Arbeit eingeschränkt ist. […]

Neubau des Gymnasiums
Die CDU begrüßt die Entscheidung des Gemeinderates für einen sechszügigen Neubau des Gymnasiums. Der Neubau des Gymnasiums ist mit einem geschätzten Volumen von rund 53,2 Mio. Euro, deren Aufbringung durch […]

Forum für Frauen – 16.06.2023 ab 18 Uhr
Das Forum für Frauen geht in die nächst Runde! Interessierte Frauen sind herzlich eingeladen. SPAZIEREN UND DISKUTIEREN Sie mit uns über die Veränderungen in unserer schönen Stadt. Ihre Meinung ist […]

Verkehrsführung in der Innenstadt
Die CDU-Fraktion hat beantragt, den Tagesordnungspunkt „Innerstädtische Verkehrsführung nach Abschluss der Baumaßnahmen Kloster-/Jakob-Kessenring-Straße“ bei einer Sitzung des Gemeinderates noch vor der Sommerpause auf die Tagesordnung zu setzen. Seit einiger Zeit, […]

Bürgerstammtisch am 13.04.2023
im Weinstein
Der nächste Stammtisch für alle interessierten Bürger findet am 13.04.2023 ab 19:00 Uhr im Weinstein statt.

Einladung zum Frauenstammtisch am 24.03.2023 ab 19 Uhr im Café Walker
Beim nächsten Forum für Frauen freuen wir uns wieder auf spannende Gespräche und Diskussionen zu allen Themen, die Sie beschäftigen.

Einladung zum Bürgerstammtisch am 09. März 2023
Die CDU lädt Bürgerinnen und Bürger wieder ganz herzlich ein zum öffentlichen Bürgerstammtisch am Donnerstag, den 09.03.2023, um 19.00 Uhr im Weinstein, Münsterstraße 10 (Kronengässele), Überlingen. Der CDU-Bürgerstammtisch bietet wieder […]

Kommunalpolitische Standortbestimmung
CDU-Fraktionssprecher Günter Hornstein hat beim Neujahrs-Ochsengschwätz einen Rückblick auf das Jahr 2022 mit einem Ausblick auf das noch junge Jahr 2023 verbunden. Im vergangenen Jahr war die Arbeit im Gemeinderat […]

Hospiz in Überlingen
Es ist aus Sicht der CDU Überlingen sehr erfreulich, dass die über 10 Jahre andauernden Bemühungen um den Bau eines Hospizes in Überlingen auf einem guten Weg und ein großes […]

Einladung zum Neujahrs-Ochsengschwätz mit Günter Hornstein am 19.01.2023
Nach zwei Jahren Pause lädt die CDU wieder ganz herzlich ein zum traditionellen Neujahrs-Ochsengschwätz mit CDU Fraktionssprecher Günter Hornstein Thema „Kommunalpolitischer Rück- und Ausblick“ am Donnerstag, 19.01.2023, um 19.30 Uhr […]

Antrag der CDU-Fraktion zur Anbindung des Gewerbegebiets Langäcker an den ÖPNV.
Die CDU-Fraktion beantragt bei der Stadtverwaltung zu prüfen, welche Möglichkeiten es gibt, das Gewerbegebiet Langäcker mit den Betrieben Matrium/Rolls Royce und RAFI an den öffentlichen Personennahverkehr anzubinden. Seitens der Mitarbeiterschaft […]

Stellungnahme der CDU Fraktion zum Plangebiet „Rauenstein Ost“
Die Schaffung von bezahlbarem Wohnraum ist derzeit eine dergroßen gesellschaftlichen und politischen Herausforderungen. Aberwie oft bei solchen Fragestellungen findet man großeÜbereinstimmung und Zustimmung, wenn das Problem abstraktbenannt wird. Wenn es […]

Forum für Frauen – Stammtisch
Herzlich Willkommen zum nächsten Forum für Frauen! Wann? Freitag, den 25.11.2022 ab 19:00 Uhr Wo? Gasthof Engel in Überlingen

Bebauungsplan „Kibler/Rauenstein“ – Stellungnahme der CDU Fraktion
Zum Bebauungsplan „Kibler/Rauenstein“ nahm die CDU Überlingen, vertreten durch Fraktionssprecher Günter Hornstein, in der Gemeinderatssitzung vom 19.10.2022 wie folgt Stellung: Mit dem Bebauungsplan Fischerhäuser Vorstadt und diesemBebauungsplan werden und wurden […]

Mammutaufgabe Schulentwicklung
Die CDU setzt sich dafür ein, dass die Überlinger Schulen bedarfsgerecht geplant underweitert werden, damit Überlingen als Schulstandort seiner Aufgabe als Mittelzentrumauch in Zukunft gerecht wird. Fraktionssprecher Günter Hornstein brachte […]
Änderung des Bebauungsplans Schreibersbildstraße/Seehaldenstraße?
Im Nachgang zur Berichterstattung über die Beratung des Gemeinderates über eineÄnderung des Bebauungsplans Schreibersbildstraße/Seehaldenstraße ist daraufhinzuweisen, dass der bestehende Bebauungsplan, wie Bürgermeister ThomasKölschbach in der Ratssitzung berichtet hat, neun Normenkontrollverfahren […]

Einladung zum Stammtisch
Die CDU lädt Bürgerinnen und Bürger wieder ganz herzlich ein zumBürgerstammtisch am Donnerstag, den 13.10.2022, um 19.00 Uhrim Weinstein, Münsterstraße 10 (Kronengässele), Überlingen. Der öffentliche CDU-Bürgerstammtisch bietet wieder allen an […]

Einladung zum Ochsengschwätz
Aus aktuellem Anlass lädt die CDU zu einem Ochsengschwätz zur ÜberlingerSchulentwicklung ein: Thema: Schulstandort Überlingen – wohin führt der Weg?Zeit: Montag, 10.10.2022, um 19.00 UhrOrt: Braustüble des Hotels Ochsen, Münsterstraße […]

CDU Überlingen mit
58 % Frauenanteil im Vorstand
Die Mitgliederversammlung der CDU Überlingen hat am 14.07.2022 unter derVersammlungsleitung von Volker Mayer-Lay (MdB) erstmals einen Vorstand gewählt, indem mehr Frauen als Männer vertreten sind. Der geschäftsführende Vorstand AlexanderBruns (Vorsitz), […]

























